Eagle / EG28604S

Home » Floor Plans » Eagle / EG28604S

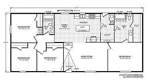
Floor Plan Details

Manufactured

BEDS: 4     BATHS: 2.00     SQ FT: 1599     W X L: 26′ 8″ x 60′ 0″

BUILT BY: Cavco Woodburn

Eagle EG28604S – Beautifully crafted family home features spacious living room open to a beautiful kitchen with island, family size dining room, direct access to multi-purpose laundry/utility/storage room, large comforting master bedroom with luxurious ensuite (optional stall shower, king size oval tub and dual sinks), three kingsize secondary bedrooms and guest bath privately located away from master bedroom suite, available with large optional den in-lieu of fourth bedroom. Approved for MH Advantage financing.
Share this home on Facebook

Tours & Videos

No Videos Available

3D Tour

No 3d Tour Available

Floor Plan

Floor Plan Specifications

Floor Decking: 4'x8' x19/32" tongue and groove OSB
Floor Joists: 2x6 16" O.C.
Roof Load: 20 Lbs
Roof Truss: 24" O.C.
Side Wall Height: 96" Flat Ceiling
Insulation (Floors): R11
Insulation (Walls): R11
Insulation (Ceiling): R21
Dormer: Standard
Front Door: 36" Inswing with deadbolt knocker and peephole
Rear Door: 32" Inswing with deadbolt
Roof Pitch: 3/12
Shingles: Architectural with Limited Lifetime Warranty
Siding: LP Smartside Panels
Window Trim: Faux Shutter Painted FDS 4" trim all others
Window Type: Low-E Vinyl Windows with Argon Gas
Exterior Lighting: At Front and Back Doors
Electrical Service: 200 AMP
Water Heater: 30-Gallon Electric Standard / 50-Gallon optional
Bathroom Sink: Acrylic
Bathroom Lighting: Recessed can lights - optional Cosmetic light
Bathroom Flooring: Lino
Bathroom Backsplash: 4" Laminate
Bathroom Bathtubs: 60" Acrylic tub with 3 piece Surround and shower head
Kitchen Sink: 8" Deep Stainless Steel
Kitchen Refrigerator: 18 CF Frost Free
Kitchen Range Type: 30" Electric with window and clock
Kitchen Range Hood: 30" Black
Kitchen Lighting: Recessed LED can lights
Kitchen Flooring: Lino
Kitchen Faucets: Dual Handle Chrome
Kitchen Countertops: Laminate
Kitchen Backsplash: 4" Laminate
Interior Doors: 2 or 6 White Raised Panel
Interior Lighting: LED can light

Photo Gallery

Please note:

All sizes and dimensions are nominal or based on approximate manufacturer measurements. 3D Tours and photos may include retailer and/or factory installed options. Future Homes of Redmond reserves the right to make changes due to any changes in material, color, specifications, and features at any time without notice or obligation.